Disclaimer: Цей сайт є незалежним фан-клубом ентузіастів Volkswagen у Києві. Ми не продаємо товари чи послуги від імені бренду.
Перше покоління Volkswagen Golf (1975-1984 рр.) є легендою компактних автомобілів. Незважаючи на відносну простоту конструкції, електросистема цієї моделі потребує уважного обслуговування. У цій статті представлено докладний опис запобіжників і реле Фольксваген Гольф 1, включаючи схеми блоків, точні місця розташування та фотографічні приклади виконання. Ми окремо виділяємо запобіжник, що відповідає за прикурювач.


Електрична система Golf 1 характеризується прямою, менш комп’ютеризованою проводкою. Це спрощує діагностику, але робить її більш схильною до проблем із заземленням (масою). Несправності запобіжників можуть бути не єдиною причиною відмови: часто слід перевіряти точки з’єднання “маси” з кузовом.
У ранніх версіях Golf 1 використовувалися циліндричні (торпедоподібні) запобіжники, які більш схильні до перегріву контактів та окислення, ніж сучасні плоскі аналоги. При діагностиці електричних проблем рекомендується перевіряти не лише цілісність нитки запобіжника, але й стан його контактів у гнізді монтажного блоку.
Зверніть увагу: призначення запобіжників і реле може відрізнятися від представленого і залежить від року випуску, рівня електричного оснащення та регіону поставки Вашого автомобіля.
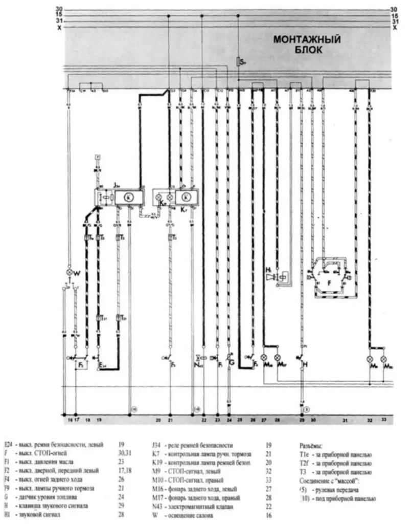
Блок запобіжників і реле
У салоні автомобіля основний блок із запобіжниками і реле розташований під панеллю приладів з боку водія.

| № | A | Опис запобіжників |
|---|---|---|
| 1 | 8 | Ліва фара ближнє світло |
| 2 | 8 | Права фара ближнє світло |
| 3 | 8 | Ліва фара дальнє світло |
| 4 | 8 | Права фара дальнє світло |
| 5 | 16 | Обігрів заднього скла |
| 6 | 8 | Стоп-сигнал, аварійні вогні |
| 7 | 8 | Прикурювач, внутрішнє освітлення, годинник |
| 8 | 8 | Покажчики поворотів |
| 9 | 8 | звуковий сигнал і світло заднього ходу |
| 10 | 16 | Вентилятор радіатора |
| 11 | 8 | Склоочисник, склоомивач та омивач заднього скла |
| 12 | 8 | Підсвічування номерного знака |
| 13 | 8 | Задній ліхтар правий, передній габаритний ліхтар правий |
| 14 | 8 | Задній ліхтар лівий, передній габаритний ліхтар лівий |
| 15 | 8 | Протитуманна фара 25А Вентилятор радіатора |
| 16 | 50 | Пускові свічки розжарення |
| Призначення реле | ||
| R1 | Контроль зарядки | |
| R2 | Передні склоочисники | |
| R3 | Аварійна сигналізація | |
| R4 | Сигнал не пристебнутих ременів безпеки | |
| R5 | Задній склоочисник | |
| R6 | Контрольні лампи / паливний насос | |
| R7 | Свічки розжарювання / Контроль вмісту кисню | |
| R8 | Звуковий сигнал | |
Окремо у верхній частині блоку можуть встановлюватися додаткові запобіжники, що відповідають за роботу радіо, електричних склопідіймачів та інше.
Загальна схема електричних з’єднань









